Trilocale in vendita

Roma, Via Bagaladi - Finocchio Ovest
€ 169.000
Prezzo aggiornato
3 locali 3 locali
122 Mq 122 Mq
1 bagno 1 bagno

Trilocale in vendita

Roma, Via Bagaladi - Finocchio Ovest

Descrizione annuncio

Appartamento situato a soli 750 metri dalla stazione metropolitana di Finocchio, perfetto per chi desidera vivere in una zona residenziale tranquilla ma ben collegata. L'immobile si trova in una via secondaria che garantisce privacy e tranquillità.

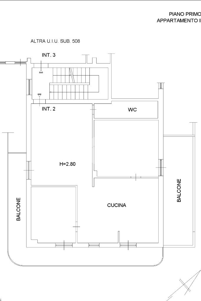
L'appartamento, di 120 mq al primo piano, è libero su tre lati e si presta ad essere personalizzato secondo i tuoi gusti. Attualmente è disposto come un tre locali che comprende un ampio salone, una cucina abitabile con camino, due camere da letto e un bagno. La presenza di due balconi a livello e di un giardino al piano terra, di circa 50 mq, permette di godere di momenti di relax all'aperto. La proprietà include inoltre un lastrico solare di circa 75 mq al secondo piano utile per la realizzazione di un giardino pensile o all'installazione di un impianto fotovoltaico. L'appartamento ha un orientamento Nord, Sud e Est e garantisce un'ottima esposizione solare durante tutto il giorno. Contattaci subito per maggiori informazioni e per prenotare una visita!

Nella sezione dedicata alle planimetrie, la seconda immagine illustra un'ipotesi di ristrutturazione.

Vuoi mettere in vendita il tuo immobile ma non sai a quanto?

Sei curioso di sapere se oggi il suo valore è aumentato, diminuito o è rimasto invariato rispetto a quando l'hai acquistato?

Una risposta precisa la puoi avere solo con una valutazione immobiliare, che la Tecnorete di Finocchio oggi ti offre a titolo gratuito, contattaci al numero 06.20.76.09.09 oppure al 351.53.22.508.

Mostra tutto

Nelle vicinanze

Trasporto pubblico Trasporto pubblico
Finocchio
Finocchio
710 m
Graniti
Graniti
970 m
Rocca Cencia/Sellia
Rocca Cencia/Sellia
90 m
Rocca Cencia/Camigliatello
Rocca Cencia/Camigliatello
310 m
Scuole Scuole
Prato Fiorito
2,1 Km
Franco Ferrara
2,2 Km
Scuole
2,6 Km
Farmacia Farmacia
Farmacia Colle del Sole
2,1 Km
Supermercati Supermercati
Ipercarni
1,1 Km
Supermercato Il Castoro
1,1 Km
Simply Market
1,2 Km
Supermercati
2,3 Km
Eurospin
2,6 Km
Ristoranti Ristoranti
Pizzeria La Vela
1,1 Km
Dom
2,4 Km
Caffetteria Osteria Gabii
2,6 Km
Tenuta Santi Apostoli
2,8 Km
Mostra tutto

Caratteristiche

Rif.:
61089244
Piano:
1 di 2 (Piano alto)
Balconi:
2
Camere da letto:
2
Arredamento:
Assente
Condizionamento:
Autonomo
Mostra tutto
Prezzo Prezzo
€ 169.000
Rata mutuo Rata mutuo
€ 796 / mese
Proponi il tuo prezzoProponi il tuo prezzo
Immobile valutato con T·Valuta

Altre caratteristiche

Descrizione dei locali
Cucina Abitabile

Classe Energetica

G
G
G
G
G
G
G
G
G
EP globale non rinnovabile:
175.00 kW h/m² anno
EP globale rinnovabile:
0.00 kW h/m² anno
EP invernale del fabbricato:
EP estiva del fabbricato:
Anno di costruzione:
1980
Riscaldamento:
Assente

Prezzo ridotto di €1 (6%%)

Ti interessa visionare l'immobile?

Fissa un appuntamento  Fissa un appuntamento

Richiedi informazioni

Clicca su Leggi per aprire l'informativa
* Questi campi sono obbligatori

Calcola il tuo mutuo

Semplice e senza impegno
Anticipo

( % )
Mutuo

( % )

pochi semplici passi

inserisci i tuoi dati
Questionario completato
Grazie per aver richiesto un appuntamento senza impegno con un nostro Consulente del Credito e Assicurativo.

Hai inserito correttamente tutti i dati necessari e a breve riceverai una e-mail con un link da convalidare per inviare i tuoi dati.
Affiliato
Immobiliare Casilina Srl
Via Casilina, 1853/B 00132 Roma (RM)

Il nostro staff


  • Giampaolo Fagnillo
    Affiliato
Via Casilina, 1853/B 00132 Roma (RM)
Zona: Finocchio - Borghesiana
Mostra su mappa
Orari: dal lunedì al venerdì 09.00-13.00 15.30-19.30. Il sabato: 09.00-13.00 15.30-18.00
Affiliato
Immobiliare Casilina Srl
Via Casilina, 1853/B 00132 Roma (RM)

2026 Tecnocasa Franchising S.p.A. - P. IVA 08365160152 - Via Monte Bianco 60/A 20089 Rozzano (MI). Ogni agenzia ha un proprio titolare ed è autonoma. Privacy policy | Policy utilizzo | Cookie policy